ДМИТРОВ

ЮРИДИЧЕСКАЯ КОМПАНИЯ "КВАРТАЛСИТИ"

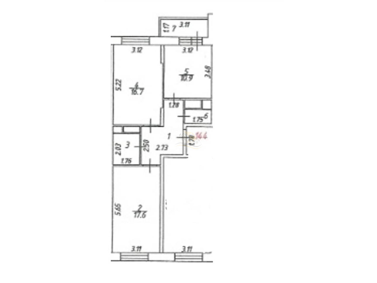
2-комн. квартира 58.5 м² в мкр. Махалина, д.36, Дмитров: комнаты 16.7+17.6 м², инфраструктура. Московская область

Россия, Московская область, Дмитров, микрорайон имени В.Н. Махалина, 36

Вернуться в каталог
2-комн. квартира 58.5 м² в мкр. Махалина, д.36, Дмитров: комнаты 16.7+17.6 м², инфраструктура. Московская область. КварталСити
  • Цена объекта: 7 970 000
  • Шоссе: Дмитровское
  • км от МКАД: 55
  • Площадь квартиры: 58,5 М2
  • Жилая площадь: 34,3 М2
  • Площадь кухни: 10,9 М2
  • Раздельный санузел: Да
  • Ремонт: Евро
  • Этаж / Этажей в доме: 13 / 17
  • Тип дома: Монолитно-кирпичный
  • Пассажирский лифт: 1
  • Грузовой лифт: 1

🔊 Мечтаете о просторной и уютной квартире в экологически чистом районе Подмосковья?
Тогда это предложение для вас!

📣 Продается 2-КОМНАТНАЯ КВАРТИРА в живописном жилом комплексе Лесной квартал,
расположенном в городе Дмитров Московской области, микрорайон им. Владимира
Махалина, дом 36. Квартира вашей мечты ждет вас!

✅ ПРЕИМУЩЕСТВА КВАРТИРЫ:

- ПРОСТОРНАЯ КВАРТИРА: Это идеальный вариант для тех, кто хочет начать новую жизнь в новом доме.
- УДАЧНАЯ ПЛАНИРОВКА: Общая площадь 58.5 кв.м. позволит вам с комфортом разместиться всей семьей. Раздельные комнаты по 16.7 и 17.6 кв.м. обеспечат каждому члену семьи личное пространство.
- БОЛЬШАЯ КУХНЯ: Кухня площадью 10.9 кв.м. станет любимым местом для приготовления вкусных блюд и семейных обедов.
- ЗАСТЕКЛЁННАЯ ЛОДЖИЯ: Наслаждайтесь свежим воздухом и живописными видами на собственной лоджии.
- РАЗДЕЛЬНЫЙ САНУЗЕЛ: Раздельный санузел, облицованный современной плиткой, обеспечит дополнительный комфорт.
- ДМИТРОВ, МОСКОВСКАЯ ОБЛАСТЬ: Идеальное сочетание городской инфраструктуры и близости к природе.

✅ ИНФРАСТРУКТУРА КВАРТАЛА:

В квартале есть все необходимое для комфортной жизни:
- МАГАЗИНЫ: В шаговой доступности находятся магазины Озон и Валберис, продуктовые магазины, цветочные лавки, ателье и многое другое.
- МЕДИЦИНСКИЕ УЧРЕЖДЕНИЯ: Поликлиника и стоматология расположены прямо на территории комплекса.
- ПАРКОВКА: Большая парковка во дворе обеспечит вам свободное место в любое время суток.
- ДЕТСКАЯ ПЛОЩАДКА: Современная и безопасная детская площадка станет любимым местом для игр ваших детей.

✅ ТРАНСПОРТНАЯ ДОСТУПНОСТЬ:

- АВТОБУСНАЯ ОСТАНОВКА: Всего 7 минут пешком до автобусной остановки.
- Ж/Д СТАНЦИЯ ДМИТРОВ: 10 минут на автомобиле до ж/д станции Дмитров, откуда вы сможете быстро добраться до Москвы и других городов.

✅ ЮРИДИЧЕСКАЯ ЧИСТОТА:

Квартира продается в свободной продаже, без прописанных лиц и обременений. Быстрый выход на сделку!

🔥 Не упустите свой шанс приобрести идеальную квартиру в Дмитрове!

☎ Звоните прямо сейчас и записывайтесь на просмотр!

Олег Анатольевич. Агентство недвижимости в Дмитрове. КварталСити
По этому объекту Ваc проконсультирует:

Олег Анатольевич
+7(967)138-56-67
+7(915)-226-01-03
Все объекты Риэлтора